× Overview Amenities Payment Plan Floor Plans Location Master Plan Gallery

Get in Touch

Call Us +971 55 162 3236 WhatsApp +971 55 162 3236
× Home Projects Developers Communities Contact

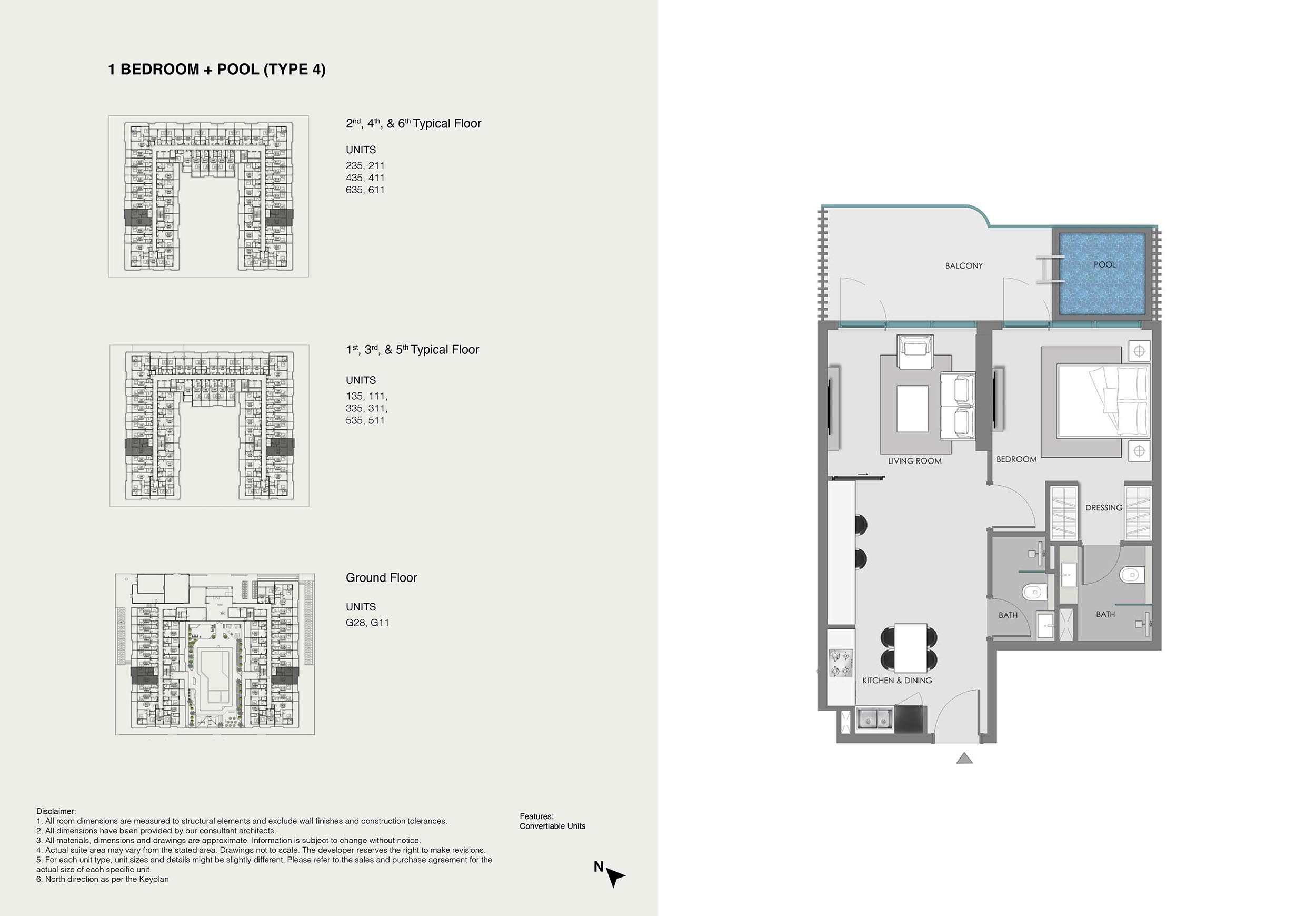
Samana Imperial Gardens - Floor Plans

The intelligently designed floor plans also make Samana Imperial Gardens have functional and sophisticated combinations with studios, 1 and 2-bedroom apartments. Mostly free-flowing units will be flexible, which will enable the residents to tailor the spaces to meet changing lifestyles. Floor plans are equipped to handle natural light and ventilation thus giving interiors the humid and airy effect. Considerable flow designs provide convenience and seclusion. The houses have modern and neat designs that unite the living, and recreational rooms. There are common areas which are strategically placed and do not intrude on the personal spaces in order to increase convenience.

View More